Шоковая заморозканизькотемпературні камери для переробки сиру

  • Черкассы
  • Добавлено 08.10.2025
  • ID: 79323
Следующее объявление
Наша організація ТМ «Українська холодильна компанія» має багаторічний досвід роботи з провідними виробниками Української економіки хлібобулочної продукції.
У постійному зв’язку з практикуючими технологами та освітніми організаціями, пропонуємо нашим клієнтами якісні послуги з питань холодильної та кліматичної техніки, загалом вирішення моментів зберігання та заморозки в технологічній ланці підприємства Партнеру.

Наші інформаційні послуг
-консалтинг
-аналіз технологічних навантажень
-правильний підбір технічного завдання для інженерів,підрядників.
-аналіз ціни майбутніх затрат для обслуговування і використання єлектроенергії.

Наші інженерні послуги
-технічні розробки (передовий світовий досвід)
-інноваційні рішення
-проектування (офіційна ліцензія)
-прямі поставки з провідних заводів світу (економічність рішеннь)
-проведення монтажних та пусконалагоджувальних робіт
-сервісне обслуговування та повна інженерна підтримка в процесі єксплуатації.

Підтримання штату компанії технологів майже всіх галузей харчової промисловості надає нам змогу постійно знаходитися в тренді своєї галузі.
Інженерний відділ знає та адаптує інноваційні рішення та досвід провідних світових компаній.
Також проходе постійне навчання і ліцензування.
Відділ поставок моніторить не тільки технічні можливості виробників обладнання та матеріалів,а ще мінімізує цінову категорію для виробників Української економіки.
Відділ монтажу та сервісу має спеціалізованний транспорт,інструмент та багатий досвід реалізації подібних проектів.Також наші спеціалісти мають всі допуски для роботи з напрямками СС2 та СС3.

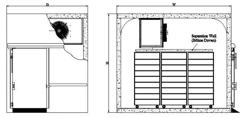
Наші продукти для сирної продукції
-молокоохолоджувачі
-середньотемпературна камера для зберігання сироватки та інших видів сировини
-камера дозрівання
-додаткове охолодження конвеєрів та ліній
-шокова заморозка
-тунельна заморозка
-морозильні камери
Професіоналізм-запорука якісного інвестування

Адреса:
м. Харків
просп. Льва Ландау, 149
Телефон: +380 96 623 4712
Електронна адреса: ukr.coolingcompany@gmail.com
Наш сайт: https://ukrholod.com/

Просмотров: 43

  • 1 грн

Поделиться

Похожие Объявления

Смотреть все
Наверх